0
  • Acheter De l'ancien
Dans un rayon de
Budget
Mini
Maxi

    Faites estimer votre bien par un professionnel

    Estimer votre bien

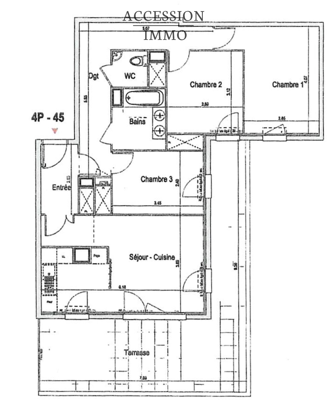
    Appt T4/3 Dijon DRAPEAU - CHARMETTE Récent 76 m² 2/3 Chambres TERRASSE Sud 31 m² GARAGE

    Dijon (21000)
    Réf : 1664

    # RARE # # Nouveauté #

    ACCESSION IMMO vous propose, en exclusivité :

    Un appartement de type 4 lumineux au 4 ème étage (ASC) de 76 m² une Résidence de 2022 sécurisée AVEC UNE TERRASSE Sud de 31 donnant intégralement sur intérieur avec un local à vélo et UN GRAND GARAGE au sous-sol.

    11, rue Jean PONCELET 21000 DIJON

    Comprenant : Une entrée parquet 4,43 m² (visiophone et penderie double), un séjour parquet (fibre) avec une porte fenêtre EST et une porte fenêtre double SUD + une cuisine équipée SUD ouverte sur le séjour de 22 (meubles, hotte, gazinière, lave vaisselle, emplacement machine à laver) avec une porte fenêtre donnant SUR UNE BELLE TERRASSE DALLEE SUD de 31 m² (grand store banne électrique, lumière, robinet d'eau), un salon / Chambre 3 parquet 9,82 m² sur le séjour (penderie double) avec une porte fenêtre EST donnant sur terrasse, un dégagement parquet (spots en plafond), une salle de bains carrelée faïencée 4,38 m² (meuble double vasques, glace et sèche serviettes), un w-c carrelé indépendant (lave mains), une chambre parquet 9,69 m² (penderie double) avec une porte fenêtre SUD donnant sur la TERRASSE et une chambre parquet 12,73 m² SUD avec une fenêtre oscillo battante (avec un grand dressing) ;

    Ainsi qu'un local à vélo et UN Grand GARAGE 14 m². (rayons et bip d'accès)

    Classe énergie : C - classe climat : C (réalisé le 08/11/2025). Montant estimé des dépenses annuelles d'énergie pour un usage standard : entre 500 € et 720 € par an - Prix moyens des énergies indexés sur les années 2021, 2022 et 2023 (abonnements compris) ( copropriété de 98 lots) (pas de procédure en cours)

    Charges annuelles = 2 100 € (communs, syndic, eau froide et chaude, chauffage collectif gaz avec répartiteurs de calories) Taxe foncière = 1 592 €

    # Proche Tram, commerces, écoles, Centre Ville, Centre commercial Toison d'Or et Rocade LINO #

    # Au calme, lumineux, en bon état général, cuisine équipée, terrasse dallée de 31 m², volets roulants électriques, grand store électrique, fibre dans toutes les pièces, Logement connecté (programmations des volets, lumières, chauffage ...), Norme RT2012, sous GARANTIE DECENNALE #

    - A DECOUVRIR RAPIDEMENT -

    Prix : 267 500 € (les honoraires sont à la charge du vendeur)

    Philippe AUBERT

    Agent immobilier

    06 84 15 59 67

    www.accession-immo.com

    Les informations sur les risques auxquels ce bien est exposé sont disponibles sur le site Géorisques

    découvrir le bien
    Prix du bien 267 500 €
    Pièce(s) 4
    Chambre(s) 2

    Caractéristiques du bien

    Caractéristiques Valeurs
    Code postal 21000
    Surface habitable (m²) 75,89 m²
    Surface loi Carrez (m²) 75,89 m²
    Nombre de chambre(s) 2
    Nombre de pièces 4
    Etage 4
    Ascenseur OUI
    Vue dégagée
    Nb de salle de bains 1
    Cuisine Américaine
    Type de cuisine Equipée
    Mode de chauffage Gaz
    Type de chauffage Chaudiere
    Format de chauffage Collectif
    Visiophone OUI
    Balcon NON
    Terrasse OUI
    Nombre de garage 1
    Cave NON
    Exposition Sud
    Année de construction 2022
    Quartier DRAPEAU

    Infos financières

    Caractéristiques Valeurs
    Prix de vente honoraires TTC inclus 267 500 €

    Bilans énergétiques

    DPE GES
    Ce bien vous intéresse ?
    Fieldset par défaut
    Fieldset par défaut
    Validation

    * Champs obligatoires

    Contacter l'agence
    Validation
    Les informations recueillies sur ce formulaire sont enregistrées dans un fichier informatisé par La Boite Immo agissant comme Sous-traitant du traitement pour la gestion de la clientèle/prospects de l'Agence / du Réseau qui reste Responsable du Traitement de vos Données personnelles. La base légale du traitement repose sur l'intérêt légitime de l'Agence / du Réseau. Elles sont conservées jusqu'à demande de suppression et sont destinées à l'Agence / au Réseau. Conformément à la loi « informatique et libertés », vous disposez des droits d’accès, de rectification, d’effacement, d’opposition, de limitation et de portabilité de vos données. Vous pouvez retirer votre consentement à tout moment en contactant directement l’Agence / Le Réseau. Consultez le site https://cnil.fr/fr pour plus d’informations sur vos droits. Si vous estimez, après avoir contacté l'Agence / le Réseau, que vos droits « Informatique et Libertés » ne sont pas respectés, vous pouvez adresser une réclamation à la CNIL. Nous vous informons de l’existence de la liste d'opposition au démarchage téléphonique « Bloctel », sur laquelle vous pouvez vous inscrire ici : https://www.bloctel.gouv.fr Dans le cadre de la protection des Données personnelles, nous vous invitons à ne pas inscrire de Données sensibles dans le champ de saisie libre.
    Ce site est protégé par reCAPTCHA, les Politiques de Confidentialité et les Conditions d'Utilisation de Google s'appliquent.