0
  • Acheter De l'ancien
Dans un rayon de
Budget
Mini
Maxi

    Faites estimer votre bien par un professionnel

    Estimer votre bien

    T4 DIJON TOISON D'OR en Dernier étage (Asc.) Traversant 3 chbres Terrasse + Balcon Cave Garage (réserve) + Pkg

    Dijon (21000)
    Réf : 1590

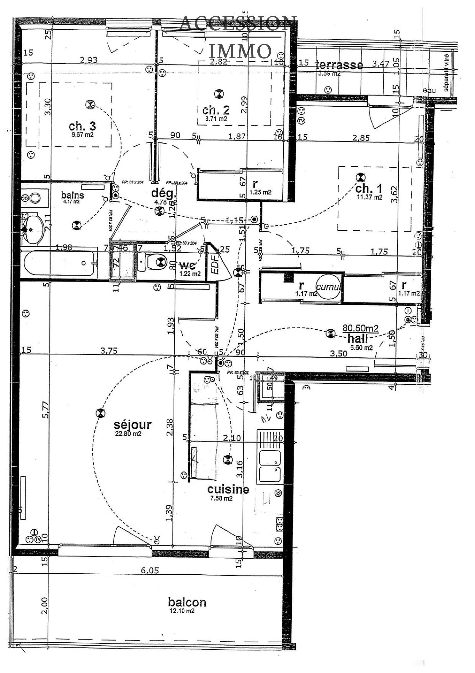
    * Nouveauté * ACCESSION IMMO vous propose en exclusivité - un appartement de Type 4 Dijon TOISON D'OR en Dernier étage (avec ascenseur) de 80 m² Traversant avec 3 Chambres (balcon) séjour 23 m² + cuisine ouverte équipée 7,50 m² sur Terrasse SUD 12 m² Cave Local vélo GARAGE large avec une RESERVE (électricité et porte motorisée) + Parking extérieur clos * LIBRE 15/06/2023 *

    .


    Comprenant : entrée carrelée 6,48 m² (penderie, cumulus récent), séjour carrelé 23 m² avec porte fenêtre donnant sur Terrasse SUD 12 m² (Grand store électrique) + cuisine équipée (meubles + hotte, plaque, four, lave-vaisselle) 7,52 m² ouverte sur séjour (porte fenêtre oscillo-battante) donnant sur Terrasse SUD 12 m², 3 chambres parquets 12,45 m² (sur balcon, penderie), 9,92 m² (penderie) et 9,60 m², un w-c carrelé, une salle d'eau carrelée 4,15 m² (emplacement lave-linge) ; ainsi qu'un local vélo, une Cave, un Garage large avec une RESERVE (électricité et porte motorisée) + Parking extérieur clos.

    .

    Classe énergie : D - classe climat : B Montant estimé des dépenses annuelles d'énergie pour un usage standard : entre 1 020 € et 1 420 € par an - Prix moyens des énergies indexés au 01 janvier 2021 (abonnements compris) (copropriété de 74 lots) (procédure en cours = prestataire déneigement)

    .

    Charges annuelles : 1 440 € * volets et grand store électriques * * Fibre * * Ravalement de façade payé = en cours *

    .

    # Proximité Bus, Tram, commerces, écoles et Parc du Château de POUILLY #

    Les informations sur les risques auxquels ce bien est exposé sont disponibles sur le site Géorisques

    .

    PRIX : VENDU

    .

    Philippe AUBERT Agent immobilier 06 84 15 59 67

    www.accession-immo.com

    découvrir le bien
    Prix du bien
    Pièce(s) 4
    Chambre(s) 3

    Caractéristiques du bien

    Caractéristiques Valeurs
    Code postal 21000
    Surface habitable (m²) 79,70 m²
    Surface loi Carrez (m²) 79,70 m²
    Nombre de chambre(s) 3
    Nombre de pièces 4
    Etage 3
    Ascenseur OUI
    Vue dégagée
    Nb de salle d'eau 1
    Cuisine Américaine
    Type de cuisine Equipée
    Mode de chauffage Electrique
    Type de chauffage Convecteur
    Format de chauffage Individuel
    Interphone OUI
    Balcon OUI
    Terrasse OUI
    Nombre de garage 1
    Cave OUI
    Nombre de parking 1
    Exposition Nord-Sud
    Année de construction 2006
    Quartier TOISON D'OR

    Infos financières

    Caractéristiques Valeurs
    Taxe foncière annuelle 612 €